Chalet te koop in DURBUY - € 189 000 euro - 70m²
Klik hier of op de foto voor een groter formaat.
Open de link naar de eerste virtuele rondleiding
Immohali VERKOCHT gezellige, bemeubelde chalet en omheind in doodlopende straat aan bos.
Ontdek de instapklare chalet op een omheind perceel (7a74ca) met hek aangrenzend aan bos.
Fraaie living uitgevend op overdekt terras. Comfortabele gasverwarming en gezellige houtkachel.
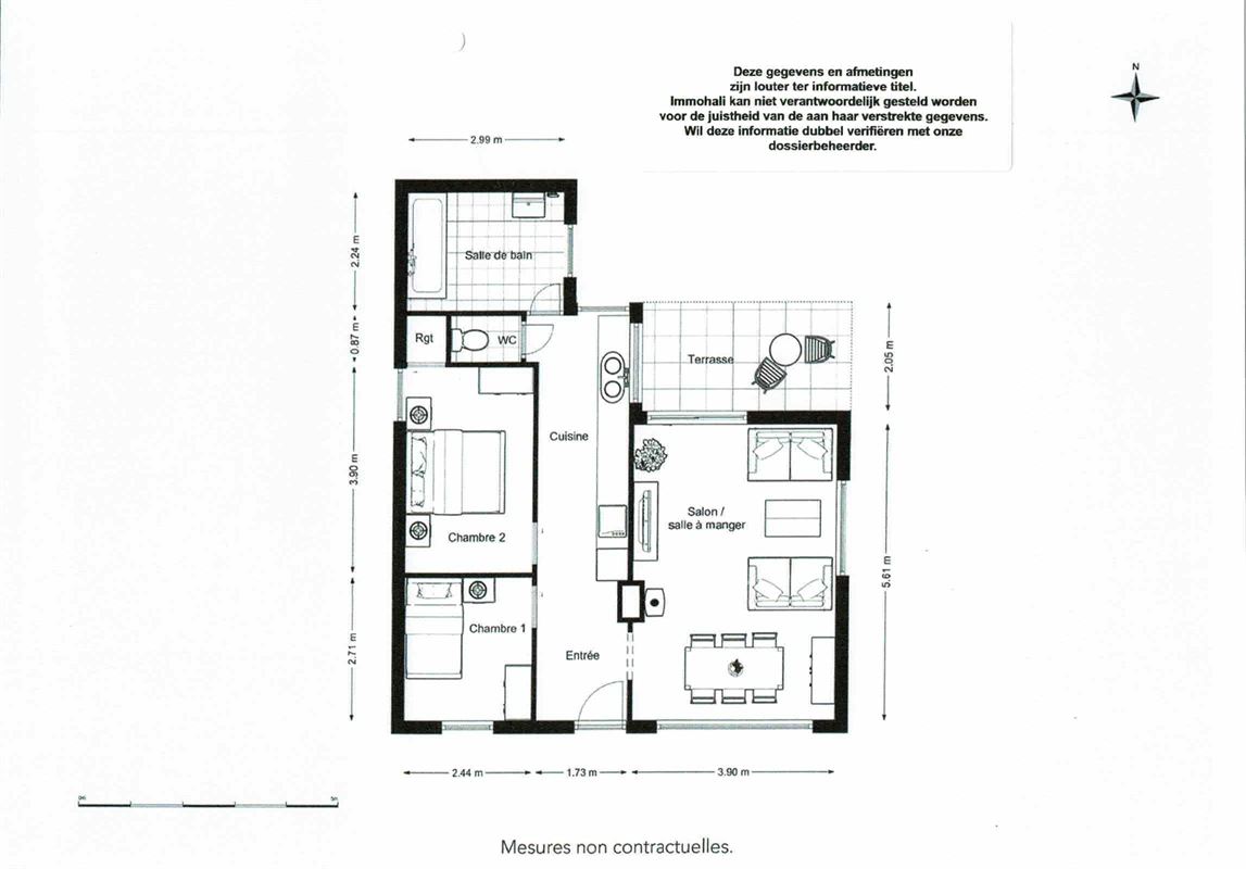
Indeling
- Inkom
- Gezellige woonkamer met extra houtkachel.
- Keuken in landelijke stijl.
- Badkamer met lavabomeubel, douche.
- Overdekt terras, onderhoudsvriendelijke tuin uitgevend op bos.
- 2 slaapkamers: 1 met dubbel bed en 1 met stapelbed.
- Aparte w.c.
- Aparte berging
Buitenruimte
- Platte, onderhoudsvriendelijke tuin
- Tuinberging
- Volledig omheind met poort en aparte toegang
Extra troeven
- Instapklaar en bemeubeld
- Elektriciteit conform
- Gasverwarming & houtkachel
- Gunstige prijs
- Zeer rustige ligging aan bosrand en eind van doodlopende straat en toch vlot bereikbaar
Ideaal als vaste woonplaats, tweede verblijf of investering.
Kopen is hier van dag één zorgeloos genieten!
Net alles wat een tweede verblijf nodig heeft,
Ideaal voor gezin, grootouders, natuurvriend en sporter
Barvaux op een boogscheut van het pittoresk stadje Durbuy, Hotton, de Ourthe, dicht bij golf de Durbuy, winkelcentrum, station, …
Genieten en beleggen het kan !!!
| Referentie | 502 |
| Woningtype | Chalet |
| Gemeente | DURBUY |
| Postcode | 6940 |
| Straat | Chemin des Charmes |
| Huisnummer | 22 |
| Transactie | te koop |
| Vraagprijs | 189 000 euro |
| Bewoonbare oppervlakte | 70m² |
| Oppervlakte perceel | 774m² |
| Aantal slaapkamers | 2 |
| Aantal badkamers | 1 |
| Energiescore E peil | 398 kWh/m²jaar |
| EPC label wall | E |
| UC Certificaatnummer | 20251214006269 |
| Niet geindexeerd KI | 296 euro |
| Bouwjaar | 1968 |
| Staat van het goed | Direct bewoonbaar |
| Aantal parkeerplaatsen | 4 |
| Aantal garages | 0 |
| Bemeubeld | ja |
| Aantal verdiepingen | 1 |
| Keuken | Amerikaanse gedeel. geïnstalleerd |
| Verwarming | Kachels op gas |
| Oppervlakte terras | 12m² |
| Oppervlakte tuin | 774m² |
| Beschikbaarheid | Bij akte |
| Bebouwing | Open |
| Elektriciteitsattest | Ja, conform AREI |
| Melding | optie |
Stedenbouwkundige info
| Stedenbouwkundige inlichtingen | Aanwezig |
| Stedenbouwkundige vergunning | Niet van toepassing |
| Voorkooprecht | Nee |
| Verkavelingsvergunning van toepassing | Ja |
| Stedenbouwkundige bestemming | Gebied voor verblijfsrecreatie |
| Dagvaarding en herstelvordering | Geen rechterlijke herstelmaatregel of bestuurlijke maatregel opgelegd |
Deze gegevens zijn louter ter informatieve titel.
Immohali kan niet verantwoordelijk gesteld worden voor de juistheid van de aan haar verstrekte gegevens.
Wil deze informatie dubbel verifiëren met onze dossierbeheerder.
De aangekondigde prijzen zijn onder voorbehoud en vrijblijvend zolang een verkoopovereenkomst of een aanbieding niet door de eigenaar / verkoper is ondertekend.


